【京阪の家】ローズグランデ北43東3

【京阪の家】ローズグランデ北43東3
子育て世帯または若者夫婦世帯なら、40万円の補助金対象です!
資料請求・お問合せ
ギャラリー
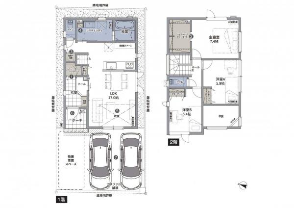
【1号地】LDK(約17.0帖)
【1号地】キッチン
【1号地】洗面室
【1号地】浴室
【1号地】トイレ
【1号地】玄関
【1号地】主寝室(約7.4帖)
【1号地】ウォークインクローゼット(約3.0帖)
【1号地】洋室A(約5.9帖)
【1号地】洋室B(約5.4帖)
【2号地】間取図
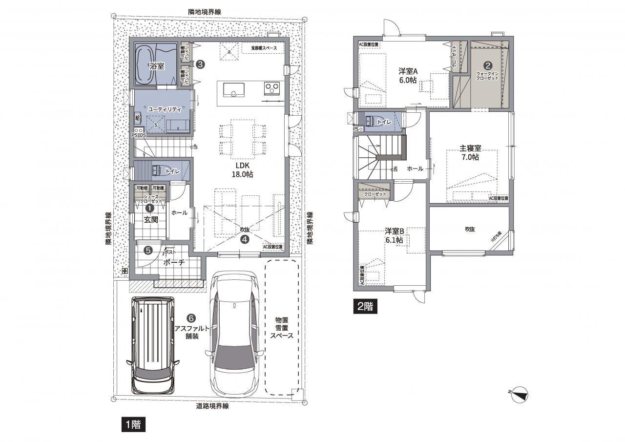
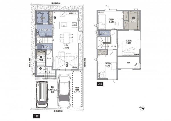
【2号地】LDK(約18.0帖)
【2号地】キッチン
【2号地】洗面室
【2号地】浴室
【2号地】トイレ
【2号地】玄関
【2号地】主寝室(約7.0帖)
【2号地】ウォークインクローゼット(約3.2帖)
【2号地】洋室A(約6.0帖)
【2号地】洋室B(約6.1帖)
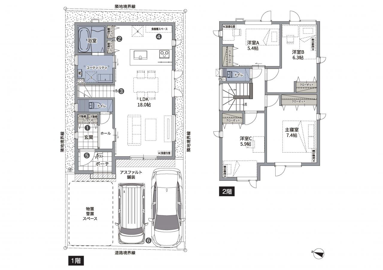
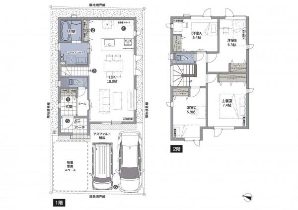
【3号地】間取図
【3号地】LDK(約18.0帖)
【3号地】キッチン
【3号地】洗面室
【3号地】浴室
【3号地】トイレ
【3号地】玄関
【3号地】主寝室(約7.4帖)
【3号地】洋室A(約5.4帖)
【3号地】洋室B(約6.3帖)
【3号地】洋室C(約5.9帖)
地下鉄「麻生」駅から徒歩15分のアクセス!
拡大MAP
地下鉄「麻生」駅から乗車9分で札幌にアクセス
従来の断熱工法に、さらに断熱材を付加し、断熱性能を向上させています。
高性能トリプルガラスを採用し、暑さ、寒さを軽減!
樹脂窓なので結露を解決してくれます。
ZEH水準の住宅は、光熱費の削減や、補助金の取得が可能になります。
物件周辺環境
栄北小学校
930m(徒歩12分)
徒歩約12分
栄中学校
840m(徒歩11分)
徒歩約11分
栄光幼稚園
110m(徒歩2分)
徒歩約2分
ジェイ・アール生鮮市場 北45条店
380m(徒歩5分)
徒歩約5分
栄町郵便局
590m(徒歩8分)
徒歩約8分
みきファミリークリニック内科・小児科
780m(徒歩10分)
徒歩約10分
北海道銀行北栄支店
380m(徒歩5分)
徒歩約10分
ドン・キホーテ 北42条店
380m(徒歩5分)
徒歩約10分
栄西公園
380m(徒歩5分)
徒歩約10分
地下鉄南北線 麻生駅
1180m(徒歩15分)
徒歩約15分
地図
路線図
広域図
- ■車2台分の駐車スペースを確保し、冬季の雪も困りません
■2.3号地の吹抜けプランは明るさをしっかり確保し、温もりのあるリビング!
■ウォークインクローゼットやパントリー等コンパクトながら十分な収納を確保しています
■トリプルサッシや付加断熱を採用し断熱等級5を取得!補助金対象物件!
■教育施設も近く子育て世代にもピッタリ!
お気軽にお問合せ下さい♪
物件概要
- 販売価格(税込)
- 3,790万円~3,950万円
- 物件所在地(住居表示)
- 札幌市東区北四十三条東3丁目2番11号(他)
- 交通
- 土地面積
- 105m2(31.76坪)~108.27m2(32.75坪)公簿(登記)
- 建物面積
- 91.30m2(27.61坪)~103.72m2(31.37坪)
- 間取り
- 3LDK~4LDK
- 総戸数
- 3戸
- 販売戸数
- 3戸
- 用途地域
- 第2種中高層住居専用地域
- 地域・地区
- 景観法 高度地区
- 建ぺい率
- 60%
- 容積率
- 200%
- 地目
- 宅地
- 私道負担
- 私道負担無
- セットバック
- 構造規模
- 木造 地上2階建て (軸組工法)
- 建物完成時期
- 2025年10月(令和7年10月)
- 建築確認番号
- R07A-KSC.A00109-01(他)(2025年5月27日付)
- 権利形態
- 土地・建物:所有権
- 道路
- 西側 8m 公道(アスファルト舗装)
- 引渡し時期
- 即時
- 施設
- 都市ガス / 公営水道 / 汚水:公共下水 / 雑排水:公共下水 / ユニットバス / ユニットバストイレ / ガスコンロ / ガス暖房 / 北海道電力
- 諸費用等
- 登記費用(実費)、固都税(実費)、仲介手数料
- 取引形態
- 売主
- 備考
- ■本物件の購入については、の仲介を通じてご購入をして頂く事となり、別途仲介手数料が発生します。
※掲載の完成予想図および図面は設計図をもとに描き起こしたもので、実際とは異なる場合があります。また、行政指示、施工の都合および改良のため、一部変更となる場合があります。 車・家具等のイメージを含みます。 雨樋・庇・設備等一部省略して表記しているものがあります。
※未完成物件につきましては、社会情勢(新型コロナウィルス等)の影響により、設備品・建材等の納期遅れが発生した場合、引き渡し時期が遅延する可能性があります。 - 情報更新日
- 2025年11月9日
お問い合わせ
- 販売窓口
- 京阪電鉄不動産株式会社 戸建事業部 札幌営業所
- 電話番号
- 0120-420-556

