【京阪の家】ローズグランデ本郷通5丁目北

【京阪の家】ローズグランデ本郷通5丁目北
札幌市白石区本郷通5丁目北7番1、7番2、7番3(住居表示未確定)
4,190万円~4,490万円
~愛される商店街「本郷商店街」がある暮らし~
本郷通5丁目北に「京阪の家」誕生!
本郷通5丁目北に「京阪の家」誕生!
資料請求・お問合せ
ギャラリー
物件周辺環境
小学校
札幌市立南郷小学校
260m(徒歩4分)
徒歩約4分
中学校
札幌市立白石中学校
340m(徒歩5分)
徒歩約5分
幼稚園・保育園
大藤学園 本郷幼稚園
380m(徒歩5分)
約徒歩5分
スーパー
東光ストア南郷7丁目店
660m(徒歩9分)
徒歩約9分
ドラッグストア
サツドラ本郷通店
320m(徒歩4分)
徒歩約4分
病院
野幌病院
530m(徒歩7分)
徒歩約7分
銀行
北洋銀行白石中央支店
610m(徒歩8分)
徒歩約8分
郵便局
白石南郷北郵便局
610m(徒歩8分)
徒歩約8分
最寄駅
札幌市営地下鉄 東西線 南郷7丁目駅
610m(徒歩8分)
徒歩約8分
公園
本郷公園
100m(徒歩2分)
徒歩約2分
地図
Loading...
路線図
広域図
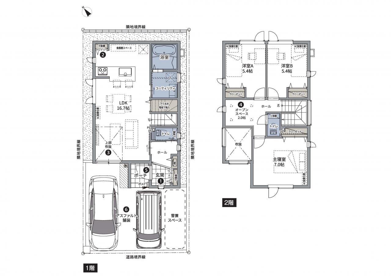
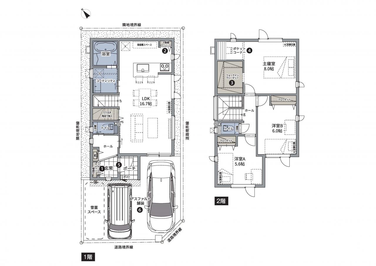
お勧めポイント
- ■「南郷7丁目」駅から徒歩8分の好立地!小中学校も5分以内で子育てにも最適!
■ウォークインクローゼットやシューズクローゼット等コンパクトな家ながら充実した収納!
■2階リビングや吹抜けを採用し南向きを活かしたプラン!日当たり良好!
■駐車1.5台∔雪置きスペースを確保した広い駐車スペース!
■トリプルサッシや2×6工法を採用し断熱等級5を取得!補助金対象物件!
お知らせ
お気軽にお問い合わせ・資料請求お待ちしております♪
物件概要
- 販売価格(税込)
- 4,190万円~4,490万円
- 物件所在地(住居表示)
- 札幌市白石区本郷通5丁目北7番1、7番2、7番3(住居表示未確定)
- 交通
- 土地面積
- 93.91m2(28.4坪)~99.27m2(30.02坪)公簿(登記)
- 建物面積
- 89.02m2(26.92坪)~127.53m2(38.57坪)
- 間取り
- 3LDK
- 総戸数
- 3戸
- 販売戸数
- 3戸
- 用途地域
- 第1種住居地域
- 地域・地区
- 高度地区 景観地区 日影制限有 隅切り有
- 建ぺい率
- 60%
- 容積率
- 200%
- 地目
- 宅地
- 私道負担
- 私道負担無
- セットバック
- -
- 構造規模
- 木造 (2×6工法)
- 建物完成時期
- 2026年1月(令和8年1月)
- 建築確認番号
- 第SKK20250729号(他)(2025年7月3日付)
- 権利形態
- 土地・建物:所有権
- 道路
- 南西側 15m 一方 公道 位置指定:無、南東側 4m 一方 公道 位置指定:無(アスファルト舗装)
- 引渡し時期
- 2026年5月下旬 予定
- 施設
- 都市ガス / 公営水道 / 汚水:公共下水 / 雑排水:公共下水 / ユニットバス / ユニットバストイレ / ガスコンロ / ガス暖房 / 北海道電力
- 諸費用等
- 登記費用(実費)、固都税(実費)、仲介手数料
- 取引形態
- 売主
- 備考
- ■本物件の購入については、三井のリハウス札幌白石センターの仲介を通じてご購入をして頂く事となり、別途仲介手数料が発生します。
※掲載の完成予想図および図面は設計図をもとに描き起こしたもので、実際とは異なる場合があります。また、行政指示、施工の都合および改良のため、一部変更となる場合があります。 車・家具等のイメージを含みます。 雨樋・庇・設備等一部省略して表記しているものがあります。
※未完成物件につきましては、社会情勢(新型コロナウィルス等)の影響により、設備品・建材等の納期遅れが発生した場合、引き渡し時期が遅延する可能性があります。 - 情報更新日
- 2025年11月14日

